For a better view of the website, update your browser.
Those browsers has new features built to bring you the best of the web.

STONEBRIDGE 0.17 ACRE, WITH FOUNDATION

MLS #419517 | Savannah, Cayman Islands
  • 98.86
  • 81.83
CI$250,000
Request a Quote
CIREBA MLS LDX feed courtesy of PROPERTY CAYMAN LTD
Mortgage Calculator
Mortgage Calculator lets you estimate your monthly mortgage payment input different prices, terms, interest rates, and down payments and see varying monthly loan amounts.
CI$ 1,074

About This Property

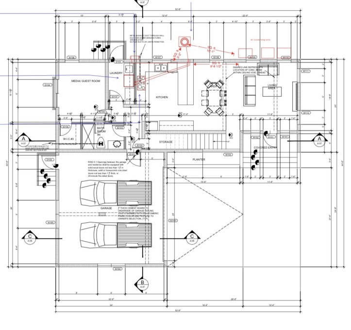
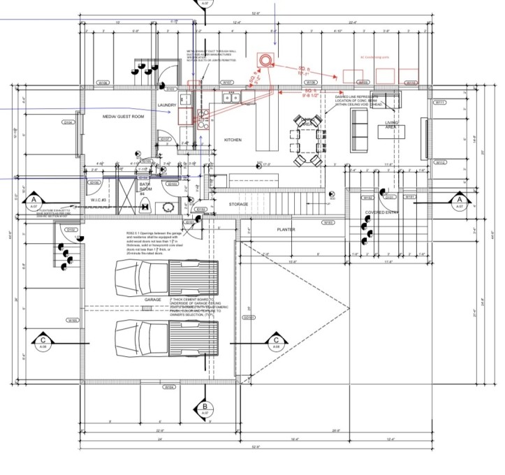
Discover the potential of this exceptional land nestled within the secure confines of Stonebridge, an esteemed gated community. With contemporary residences and essential utilities at your fingertips, this is the canvas for your architectural dreams. The groundwork is laid for your dream home, boasting a solid foundation, approved plans, and seamlessly integrated water and electrical systems. Enjoy modern living in a serene setting, with community amenities and peace of mind security. Seize this rare opportunity to sculpt your ideal haven in the heart of a sought-after location. Embark on a journey of architectural ingenuity and create the masterpiece you've always envisioned. Agent owned. Approved architectural plans included.


Property Features

  • Property Type
    Land (Low Density Residential)
  • Acres
    0.17
  • Block
    28C
  • Parcel
    26REM1H20
  • Acres
    0.17
  • Views
    Garden View
  • Zoning
    Low Density residential
  • Road Frontage
    16
  • Soil
    Other

Mortgage Calculator

Mortgage Calculator lets you estimate your monthly mortgage payment input different prices, terms, interest rates, and down payments and see varying monthly loan amounts.
Mortgage Term(Years):
Interest Rate(% Per Year):
Principal Amount($):
Down Payment(%):
Amortization(Years):
Your Estimated Payment
Down Payment Required
CI$ 50,000
Mortgage Principal
CI$ 200,000
Monthly Payment
CI$1,074
Still Owing at End of Term
CI$0

*Disclaimer: The information contained herein has been furnished by the owner(s) and or their nominee and represented by them to be accurate. The listing company, agent and CIREBA MLS disclaims any liability or responsibility for any inaccuracies, errors or omissions in the represented information. The listing details herein are also courtesy of CIREBA (Cayman Islands Real Estate Brokers Association) MLS and/or via LDX (Listing Data Exchange) feed. All the information contained herein is subject to errors, omissions, price changes, prior sale or withdrawal, without notice and is at all times subject to verification by the purchaser(s).
Debi Bergstrom
Debi Bergstrom
+1 (345) 516-0079

Add To Favorites
Email Enquiry to Debi Bergstrom
STONEBRIDGE 0.17 ACRE, WITH FOUNDATION

STONEBRIDGE 0.17 ACRE, WITH FOUNDATION

Buyers Over CI$250,000
This form is only to be used for sending genuine email enquiries to the Agent. Edgewater Group reserves its right to take any legal or other appropriate action in relation to misuse of this service.

Continue Your Search

Cookies
This site uses cookies: Read Policy